Beschreibung
Entdecken Sie dieses gemütliche, vielfältig nutzbare Haus im Herzen von Kehl-Kork.
Das Haus ist aktuell in zwei Einheiten eingeteilt und bietet somit viele Möglichkeiten, sei es als Mehrgenerationenhaus, teil-vermietetes Wohnhaus oder Renditeobjekt.
Beide Wohnungen verfügen über einen eigenen Eingang, wodurch man sich jeweils sofort zu Hause fühlt.
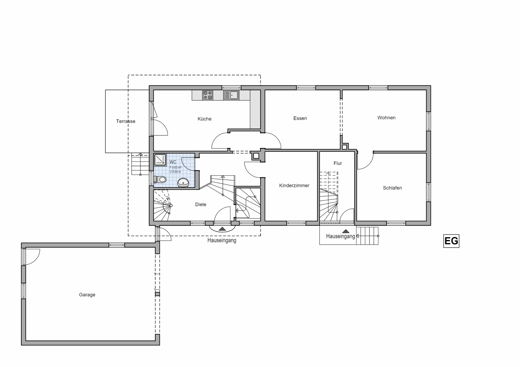
Die erste Wohnung verteilt sich um einen einladenden Eingangsbereich, welcher zu den meisten Räumen und dem Keller führt.
Im Erdgeschoss finden Sie einen geräumigen Wohnbereich mit Schwedenofen, welcher noch um ein Zimmer (aktuell Schlafzimmer) erweitert werden könnte. Die teiloffene Küche bietet einen gemütlichen Essbereich mit direktem Zugang zur Terrasse und dem Garten.
Hinzu kommen auf dieser Ebene ein weiteres Zimmer und ein erstes Badezimmer mit Dusche.
Über eine Wendeltreppe gelangen Sie ins erste Obergeschoss, in dem sich ein weiteres Zimmer (mit Balkon) und ein zweites Badezimmer befinden.
Die zweite Wohnung (aktuell vermietet) empfängt Sie mit einem eigenen Eingangsbereich und Treppenhaus, ideal, um erst einmal zu landen.
Im ersten Obergeschoss befindet sich ein sehr angenehmer Wohnbereich, eine geräumige Küche mit anliegendem Hauswirtschaftsraum, ein Zimmer und das Badezimmer (mit Badewanne und Dusche). Vom Treppenhaus gelangen Sie auch zu einem kleinen Balkon in Richtung Innenhof.
Im 2. Obergeschoss gibt es noch ein weiteres Zimmer und einen noch nicht ausgebauten Dachboden.
Ausstattung – Zustand
Das Haus ist teilweise unterkellert (Naturkeller) und verfügt über eine Doppelgarage mit direktem Zugang zum Garten.
Der angenehm große Garten lädt zum Entspannen ein und bietet viele Nutzungsmöglichkeiten.
Beide Wohnungen verfügen jeweils über eine eigene Einbauküche.
1996/1997 wurden die meisten Umbauarbeiten durchgeführt.
Hierbei wurden Heizung, Wasserleitungen, Elektrik, sowie die Fenster auf der Nordseite erneuert.
2010 wurden dann die restlichen Fenster erneuert.
Das Haus wurde seitdem natürlich konstant gepflegt, 2016/2017 gab es zum Beispiel einen frischen Außenanstrich.
Lage
Das Haus befindet sich in einer sehr angenehmen verkehrsberuhigten Lage von Kehl-Kork, direkt an der Dorfkirche und dem historischen Kern des Ortsteils.
Ein kleiner Supermarkt ist nur 200m entfernt, eine Apotheke findet man ein paar hundert Meter weiter.
Kork ist hervorragend angebunden, sei es per Bus, Zug, den Fahrradwegen oder mit dem Auto, und bietet sich entsprechend für alle Alters- und Berufsgruppen an.
Der nahegelegene Badesee lädt im Sommer zum Entspannen ein.
Weitere Informationen
Wesentlicher Energieträger : Gas und Holz
Heizungstyp : Zentralheizung
Baujahr Gebäude : 1946
Energieeffizienzklasse : E (157 kWh/m²/a)
Gültigkeit Energieausweis : 17.04.2025 bis 17.04.2035
Der Maklervertrag mit uns kommt durch schriftliche Vereinbarung oder durch die Inanspruchnahme unserer Maklertätigkeit wie z.B. die Anforderung eines Exposés, Herausgabe der Objektadresse oder Besichtigung zustande.
Die vom Käufer zu zahlende Courtage in Höhe von 2,975 % auf den Kaufpreis, einschließlich 19 % Umsatzsteuer, ist bei notariellem Vertragsabschluss verdient und fällig.
Der Immobilienmakler hat einen provisionspflichtigen Maklervertrag mit dem Verkäufer in gleicher Höhe abgeschlossen.
Alle in diesem Angebot enthaltenen Angaben, Abmessungen und Preisangaben beruhen auf Angaben der oder des Verkäufer/s, oder der oder des Architekten.
Jegliche bauliche Maßnahmen sind mit den zuständigen Behörden und einem Architekten auf deren Ausmaß, Machbarkeit und Durchführung zu klären.
Der Makler übernimmt hierfür keine Haftung.
Die Grundrisse/Schemas dienen zu Informationszwecken und können Fehler aufweisen.
Bildergalerie
Skizzen
Eigenschaften der Immobilie
- Haus
- 5 Schlafzimmer
- 3 Badezimmer
- 7 Zimmer
- Baujahr: 1946
- 2 Parkmöglichkeit(en)
- Grundstücksfläche: 474 m²
- Wohnfläche: 216,36 m²
- 2 Garage(n)
- Balkon
- Terrasse
- Innenhof
- Doppelgarage
- Einbauküche
- Freisitz
- Garten
- Teilunterkellert





















